Engineering Services

Aqua-Tech’s Engineering Services sit at the heart of our offering to water utility companies, their framework suppliers and others.

Engineering Services

Aqua-Tech’s Engineering Services sit at the heart of our offering to water utility companies, their framework suppliers and others.

Engineering Support

Our Technical Services team possess a combination of process, mechanical, electrical and ICA knowledge, which means clients can rely on Aqua-Tech to deliver on their project demands. Areas we regularly support on include:

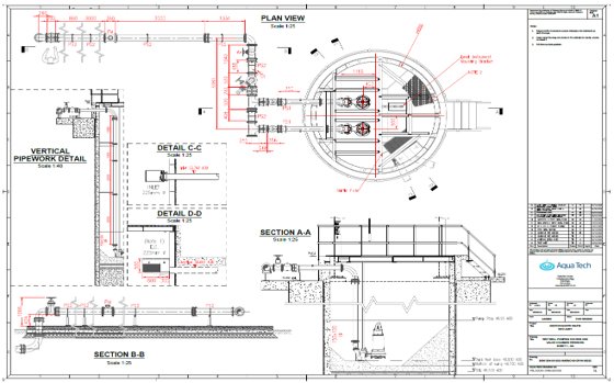
Design Services

including Front End Engineering Design (FEED)

Process Engineering Services
BIM
Lifecycle Asset Management
Specialist Consultancy
Commissioning
Reactive Maintenance

Engineering Team Approach & Collaboration

The Aqua-Tech Engineering team are highly skilled and multi-disciplined, with a vital focus on key elements of the project delivery process including:

Client interaction & engagement

Cost effectiveness

Time efficient Project Planning & Delivery

Quality of Service

These attributes ensure that Aqua-Tech’s engineering solutions provide long-term operational robustness, combined with value for money.

Technical Services Case Studies

Technical Services Case Studies